Stavební práce

Námi dodávané stavební práce jsou menšího rozsahu, jedná se především o  rekonstrukce či přestavby, zvládneme ale i rodinný dům.

Kromě prací zednických, tj. zdění, betonování, zhotovení omítek, fasád, sádrokartonů, položení dlažby a obkladů, dodáme a namontujeme samozřejmě také zámečnické části stavby. Při realizaci zakázek často spolupracujeme s jinými profesemi tak, abychom dodali stavbu kompletní. To znamená včetně rozvodů vody, kanalizace a elektroinstalace. Zajistíme zakázkovou výrobu a montáž truhlářských výrobků do interiérů, jako například vestavných skříní či kuchyňské linky apod.

STAVEBNÍ PROJEKTY

Rekonstrukce autodílny na kanceláře

Cílem investora bylo vytvořit kancelářské prostory z nepoužívaných dílen a sousedících prostorů. Celková plocha kanceláří s chodbami a příslušenstvím je přibližně 250 m2. Rekonstrukce musela řešit izolování zdí od vzlínající vody, zateplení podlah a stropů. Vzlínání na některých obvodových zdech bylo zastaveno pomocí injektáže stavební chemie do zdí, zdi byly ponechány bez omítky a zakryty sádrokartonem s odvětrávací mezerou. Podlahy byly vybourány, po vybetonování podkladní desky a základů pro příčky byla provedena izolace proti vodě spolu s tepelnou izolací. Jako podlahová krytina byla použita keramická zátěžová dlažba. Podhledy jsou sádrokatonové s příslušnou tepelnou izolací. Součástí dodávky byly také některé zakázkové truhlářské výrobky, jako například kuchyňská linka, niky, regály.

STAVEBNÍ PROJEKTY

Dostavba bytu v podkroví

V podkroví rodinného domku se přistavovala ke stávajícím pokojům obytná místnost s kuchyňským koutem a příslušenstvím. Tak vznikla v patře kompletní bytová jednotka. Zakázka obsahovala práci těchto řemesel: tesařské práce na stropech, zednické, sádrokartonářské, obkladačské, malířské, topenářské, vodoinstalatérské a elektroinstalatérské práce. Objednávka investora zněla: „dodat byt na klíč, mimo truhlářských výrobků“.

STAVEBNÍ PROJEKTY

Stání pro auta

Dřevostavba – stání pro auta u RD. Nosná konstrukce je sestavena z KVH hranolů opracovaných na zakázku. Do konstrukce přístřešku je začleněna kůlna pro nářadí. Stěny kůlny jsou zatepleny pro možnost temperování. Stání je navrženo se zadní posuvnou stěnou, která brání nafoukání sněhu v zimních měsících. Prostor pro auta je vydlážděn zámkovou dlažbou s obrubníky v úrovni trávníku.

STAVEBNÍ PROJEKTY

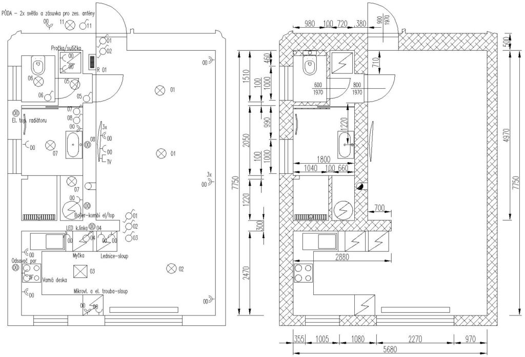
Rekonstrukce koupelny

Ekonomická rekonstrukce koupelny v nájemním bytě, která byla již v havarijním stavu. V prostoru o necelých třech metrech čtverečních bylo potřeba ponechat původní kombinovaný bojler a vyměnit vanu s umyvadlem a najít místo na pračku. Po vybourání stávajícího zařízení se musely přeložit trubky topení, které byly uprostřed místnosti, a samozřejmě i veškeré ostatní instalace. Bojler se přesunul do rohu pod strop tak, aby se pod něj vešla pračka a vše se skrylo do polootevřené skříně. Pro lepší přístup k umyvadlu se použila asymetricky zúžená vana. Na volnou stěnu se vešlo i dostatečně velké těleso topení, aniž by zasahovalo do prostoru dveří jako původní umyvadlo.