Kovovýroba

Zabýváme se především zakázkovou výrobou, ale i malými sériemi. Díky tomu je možné výrobek navrhnout a zpracovat přesně podle vašich individuálních požadavků.

Umíme vytvořit návrh a výrobní dokumentaci pro realizaci vašeho výrobku. Naše produkty nejsou tvořeny jen na strojích, ale je nich i vysoký podíl ruční řemeslné práce. Kromě standardního strojního obrábění používáme sváření různými metodami, např. MIG MAG, TIG, kondenzátorové pulzní svařování, bodové odporové svařování atd., dělení materiálů řezáním mechanicky či laserem. Pro některé výrobky se používají klasické ruční kovotlačitelské, kovářské, brusičské a další postupy.

Sortiment našich výrobků je široký, spolupracujeme s jinými profesemi tak, aby byl výsledkem kompletní a bezchybně zpracovaný produkt. Ukázka našich prací vám pomůže si vytvořit představu o našich možnostech ve výrobě.

PROJEKTY – PRŮMYSL

Manipulační přípravek pro svitky

Závěsný přípravek na portálový jeřáb pro manipulaci se svitky. Přípravek umožňuje rozebírat jednotlivé svitky z „balíku“ na paletě za vnitřní otvor svitku. Upnutí se provádí pomocí tří kleštin. Vzhledem k velké rozmanitosti průměrů a šíře svitků jsou k přípravku přiloženy nástavce pro bezpečné uchopení. Předmětem dodávky zákazníkovi byla konstrukce a výroba přípravku.

PROJEKTY – PRŮMYSL

Box na kondicionování plastových výlisků

Box pro výrobce plastových dílů na vstřikovacích lisech. Box pro „kondicionování“ dílů slouží k úpravě množství vody ve výlisku pomocí prostředí s vysokou teplotou a vodní párou. Návrh a výroba boxu s vynucenou stavbou boxu „na místě“ z důvodu nemožného přístupu do provozních prostor s kompletním boxem. Box pracuje v automatickém režimu, vnitřní i vnější plášť včetně příslušenství je z nerezové ocele a vnitřní rám je navržen s přerušením tepelných mostů izolace v konstrukci.

PROJEKTY – PRŮMYSL

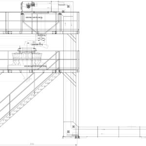
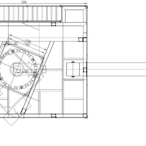
Ocelová konstrukce vah balicí linky

Ocelová dvoupodlažní plošina s nerezovou násypkou zavěšenou na tenzometrech. Předmětem dodávky je konstrukce, výroba a montáž šroubované ocelové konstrukce a nerezové násypky pro novou balicí linku v potravinářském provozu. V zadání byla podmínka montáže „bez svařování“ v místě kompletace plošiny. Plošina je ošetřena třemi vrstvami nátěru, nerezová násypka má povrchovou úpravu tryskáním.

Průmysl

Zobrazit další ukázky prací

PROJEKTY – EXTERIÉR

Věžička na jablonecké radnici

Dodávka věžičky na radnici v Jablonci nad Nisou. Podle dobových náčrtků byl zpracován výrobní postup a dokumentace pro repliku historické ozdoby radnice. Oproti té původní byla vylepšena o integrování aktivního hromosvodu „PREVECTRON“. Celková délka kompletní sestavy byla cca šest metrů, průměr téměř jeden metr.

PROJEKTY – EXTERIÉR

Hradešínská rezidence

Královské Vinohrady, Praha. Zámečnické konstrukce na novostavbě obytného areálu. Návrh způsobu výroby prvků tak, aby odpovídal záměru architekta. Po odsouhlasení investorem následuje vypracování výrobní dokumentace a dodání dílů podle harmonogramu stavby. Masivní zábradlí evokuje dojem historického kovářského výrobku. Přestože některé části zábradlí jsou z nerezové ocele, je celé zábradlí v černé barvě.

PROJEKTY – INTERIÉR

Prezentační stojany fasádních vzorků

Návrh a výroba stojanů na prezentaci vzorků fasádních omítek BAUMIT v řetězci prodejen stavebnin. Firma Baumit poptávala stojany na vystavení všech vyráběných odstínů omítek, tedy cca tisíc vzorků. Výsledným řešením byla stavebnice z bloků umožňující sestavy o různém půdorysu a velikosti. Základní sekce je pro 250 vzorků. Následovala potřeba stojanů pro cestování po výstavách. Tedy snadno rozebíratelných a skladnějších pro přepravu.

PROJEKTY – INTERIÉR

Recepce s občerstvením

Občerstvení s recepcí na tenisových kurtech. Na základě návrhu architekta a ve spolupráci s ním byla zpracována výrobní dokumentace nerezových částí interiéru a následovala jejich výroba a montáž.

Interiér

Zobrazit další ukázky prací